67
$899,998 Sale
Listed 7 hours ago
169 CALLAGHAN DR SW
· 3
· 3.0
· 5
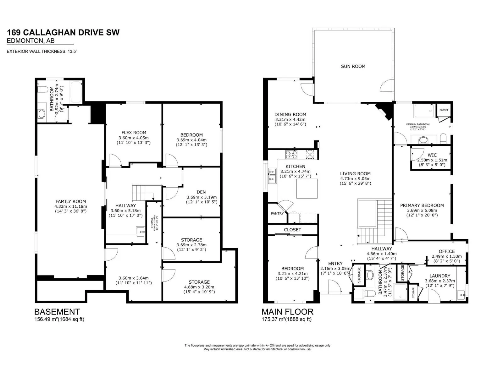
· 1888
Key Facts
Key facts for 169 CALLAGHAN DR SW
Property Type
House, House
Parking
Garage: Yes, 5 parking
MLS #
E4461797
Size
1888 sqft
Basement
Finished, Full (Finished)
Listed on
-
Lot size
-
Tax
-
Days on Market
-
Year Built
2009
Maintenance Fee
-
Description
Discover this rare find in Callaghan’s prestigious 7 Oaks, a custom luxury home of concrete construction offering unmatched comfort. Enjoy over 1,800sf of elegant main-floor living with soaring 12' ceilings, Brazilian Cherry hardwood, rich maple cabinetry & luminous quartz. The chef’s dream kitchen ...boasts SubZero, Wolf, Miele, Bosch & GE Café appliances, flowing seamlessly into expansive living & dining areas designed for gatherings. Retreat to 2 spacious bedrooms, a private office & a sun-filled 3-season room ideal for relaxation or entertaining. Nearly 3,600 sf of finished space extends downstairs with a wet bar, bedroom, full bathroom, flex room (perfect gym/guest retreat) & bonus studio/office. An oversized heated double garage with dedicated workshop adds functionality. Perfectly blending sophistication, comfort & versatility, this exceptional residence is a superb opportunity for discerning down-sizers seeking effortless single-level living in a coveted enclave close to parks, trails & amenities. (id:10452)
Similar Properties (No results)
Room Types
Bedroom 2
-
Dimensions 3.21 m x 4.19 m
144.77 sqft
Bedroom 3
-
Dimensions 3.69 m x 4.04 m
160.46 sqft
Den
-
Dimensions 3.69 m x 3.19 m
126.7 sqft
Listing courtesy of: RE/MAX Excellence
This REALTOR.ca listing content is owned and licensed by REALTOR® members of The Canadian Real Estate Association.